E-mail: shim.otvod@mail.ru +7 (7252) 954 232 +7 777 744 09 79 +7 771 894 09 79
Материал корпусных деталей:
ГОСТ 17376-2001
Стальные приварные тройники ГОСТ 17376-2001 применяются для трубопроводов различного назначения, включая подконтрольные органам надзора.
Рабочее давление: до 160 Мпа
Рабочая среда:от -70°С до +450°С
Материал корпусных деталей:
ОСТ 34.10.762-97
Стальные сварные тройники ОСТ 34.10.762-97 применяются для трубопроводов тепловых сетей, изготавливаются из стальных электросварных труб номинальным давлением 2,5 Мпа (25 кгс/см²).
Материал корпусных деталей:
ГОСТ 33259-2015
Пожарная подставка фланцевая ППФ предназначена для присоединения пожарного гидранта, устанавливается в разрез трубы противопожарного водопровода с помощью фланцевого соединения.
Изготавливается пожарная подставка фланцевая из стальных электросварных труб, фланцев плоских стальных ГОСТ 33259-2015 и фланца под пожарный гидрант номинальным давлением на Ру 10 (10 кгс/см²).
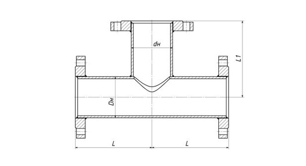
Тройники фланцевые устанавливают на трубопроводах различного назначения с целью создания ответвлений от основной линии трубопровода, а также присоединения фланцевой трубопроводной арматуры или измерительных приборов. Тройники фланцевые находят широкое применение в трубопроводных сетях предприятий ЖКХ, нефтегазовой, химической, энергетической промышленности.
Тройники фланцевые изготавливаются из электросварных труб номинальным давлением Ру 1,0 Мпа (10 кгс/см²).)
По предварительному заказу могут быть произведены тройники на условное давление Ру 1,6 МПа (16 кгс/см²).
За подробной информацией вы можете также обратиться по телефону или написать нам в WhatsApp